Böhl-Iggelheim:
Sicher Bauen mit Bien-Zenker Festpreis-Garantie - Hier könnte Ihr Traumhaus stehen

Objekt-Nr.: 12245-720
Beispielgrundriss Reihenendhaus Erdgeschoss

Beispielgrundriss Reihenendhaus Erdgeschoss

Beispielgrundriss Reihenendhaus Erdgeschoss

Beispielgrundriss Reihenendhaus Erdgeschoss

Beispielgrundriss Reihenendhaus Erdgeschoss
Beispielgrundriss Reihenendhaus Erdgeschoss

Preis:
460.000 €

Wohnfläche ca.:
110 m²

Grundstück ca.:
190 m²

Zimmeranzahl:
4

Objektbeschreibung

Sie möchten mit Ihrer Familie günstig und zentral in Böhl-Iggelheim wohnen?

Auf diesem Baugrundstück könnten wir für Sie ein top-modernes Reihenhaus bauen. Ihr Gartenbereich lädt ein zum Erholen für die ganze Familie. Im Sommer könnten Ihre Kinder im eigenen Sandkasten spielen.

Das Grundrissbeispiel zeigt mit ca. 110 m² ein tolles Wohnkonzept für Sie und Ihre Familie.

Im Erdgeschoss kommen Sie in den Genuss eines schönen Wohn-Essbereichs, der sich zum eigenen Garten hin öffnet.

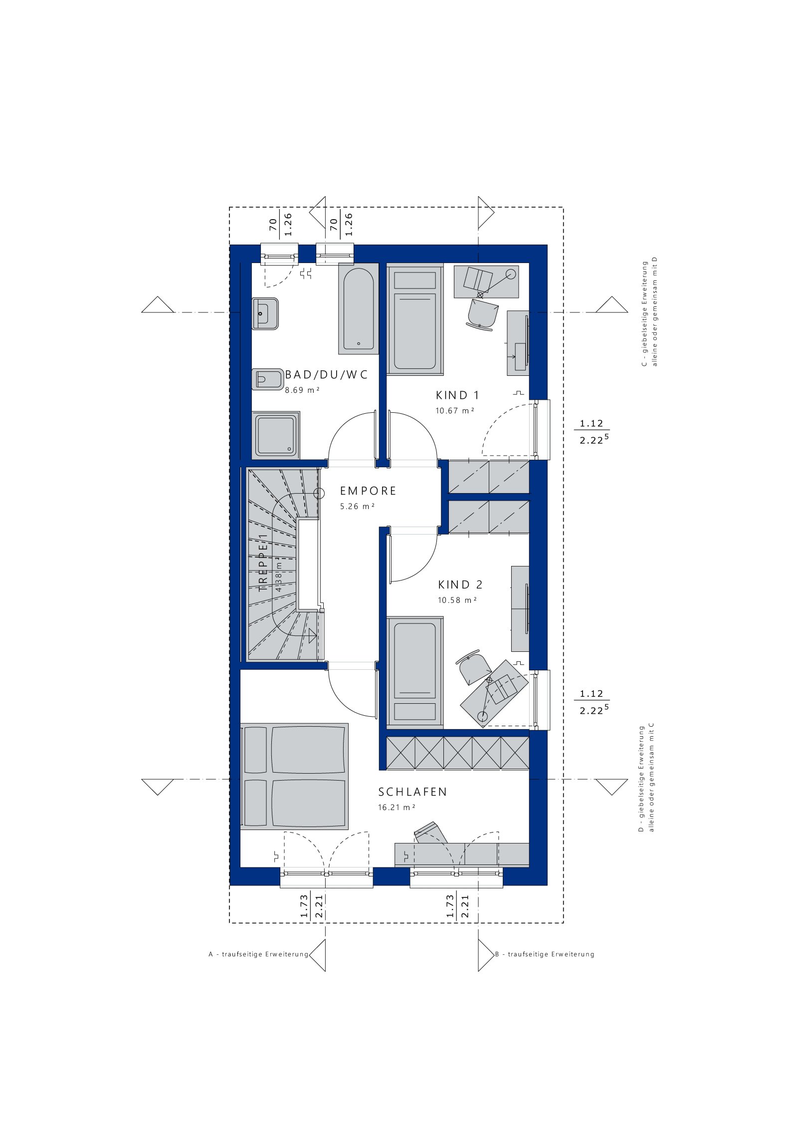
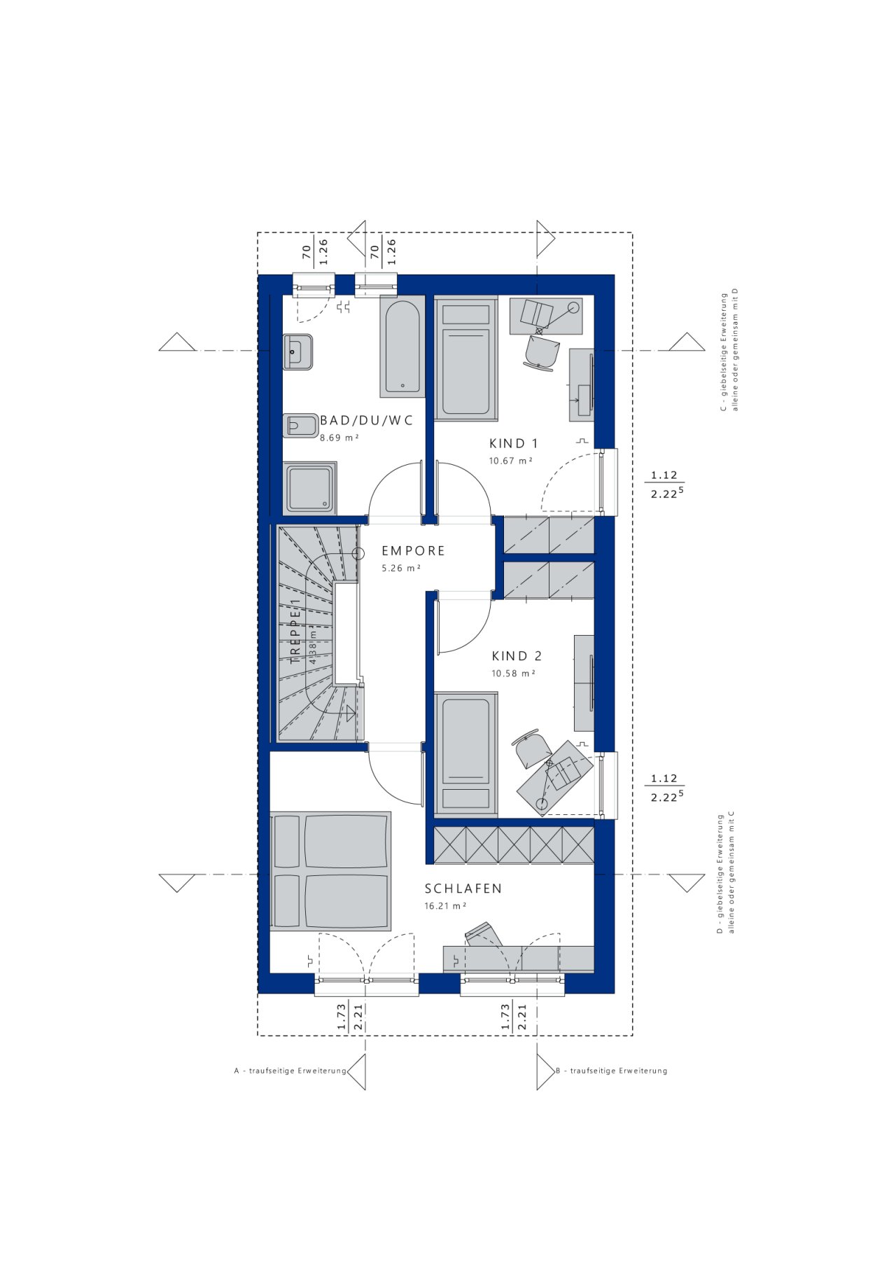
Im Obergeschoss ist Platz für Ihr Schlafzimmer und zwei Kinderzimmer, Arbeitszimmer oder Gästezimmer.

Wenn Sie mehr Raum benötigen, könnte das komplette Dachgeschoss ausgebaut werden, sodass Ihre Räume von ca. 110 qm auf ca. 150 qm erweitert werden könnten.

Im persönlichen Gespräch und der folgenden Architektenplanung werden Ihre individuellen Wünsche mit den baurechtlichen Gegebenheiten der in der schönen Pfalz im Ortskern typischen "Haus-/Hof-Bebauung" nach §34 optimiert.

Weitere Informationen

Haustyp: Reihenendhaus


Etagenanzahl: 2


Anzahl Schlafzimmer: 5


Anzahl Badezimmer: 2


Seniorengerecht: ja


Gäste-WC: ja


Garten: ja


Zustand: Haus in Planung (projektiert)


Ihre Ansprechpartnerin

Heike Scharf - Freie Handelsvertretung der Bien-Zenker GmbH
Frau Heike Scharf

Max-Planck-Str.19
69198 Schriesheim
Telefon: +49 173 5150589


Objekt-Adresse

67459 Böhl-Iggelheim
Optionen